Používame cookies

Súbory cookie a ďalšie technológie sledovania používame na zlepšenie vášho zážitku z prehliadania našich webových stránok, na to, aby sme vám zobrazovali prispôsobený obsah a cielené reklamy, na analýzu návštevnosti našich webových stránok a na pochopenie toho, odkiaľ naši návštevníci prichádzajú. Viac info

Na predaj stavebný pozemok, 9592 m2, Koreňová ulica, Bratislava - Jarovce Sever

Popis nehnuteľnosti

Zdieľať na Facebooku

VŠEOBECNE: 
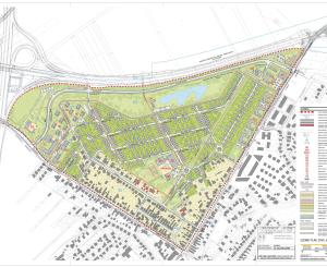
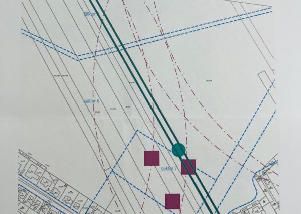
Lokalita: Jarovce, územný plán lokality Sever
Účel využitia: pozemok určený na výstavbu rodinných domov, občianskej vybavenosti, polyfunkcie, parkov
Sklon pozemku: rovinatý 
Orientácia: na všetky svetové strany

POPIS POZEMKU A JEHO VYUŽITIE: 
* prístup na pozemok je po betónovej a časť po spevnenej ceste
* pozemok sa nachádza v zastavanej časti obce medzi Chotárnou a Jantárovou ulicou, na Koreňovej ulici
*    Územný plán zóny záväzná časť, schvalovacia doložka v decembri 2022
*    na pozemku je možná výstavba samostatne stojacich rodinných domov, dvojdomov a radovej zástavby

PLOCHA A ROZMERY: 
*    ponúkaný pozemok má plochu: 9592 m2, cena 25 eur/m2 
*    šírka pozemku je 15 m, dĺžka 770 m, končí za diaľnicou                                         

*    INŽINIERSKE SIETE: 
*    elektrina, voda, kanalizácia, na Chotárnej ulici cca 150 m od pozemku


Výhodná investícia zhodnotenia pozemku pre investora, developera.
Územno-plánovacia informácia je k dispozícii na vyžiadanie.


Cena: 239.800 eur vrátane sprostredkovateľskej odmeny

Obhliadky a ďalšie informácie:
Alena Řezníčková
0903 211 100, mail: alena.reznickova@winnersgroup.sk
 

Táto inzercia nie je verejnou ponukou na uzavretie zmluvy. Vlastník si vyhradzuje právo voľby o tom, komu a za akých dojednaných podmienok prevedie svoje vlastnícke právo. Pri tejto ponuke je možné licitovať kúpnu cenu podľa všeobecných podmienok licitácie v sieti Winners reality uverejnených na: www.winnersreality.sk/licitacia.

Vlastnosti

Status:
aktívne
Vlastníctvo:
osobné
Plocha pozemku:
9592 m2
Typ zeme:
rovina
Šírka pozemku:
15 m
Dĺžka pozemku:
770 m
Celková plocha:
9592 m2
Inžinierske siete:
áno
Voda:
áno
Elektrika:
áno
Kanalizácia:
áno
Voda - blízko pozemku:
áno
Elektrika - blízko pozemku:
áno
Kanalizácia - blízko pozemku - kanalizácia:
áno
239 800 €
Ulica: Koreňová
Obec: Bratislava-Jarovce
Okres: Bratislava V
Kraj: Bratislavský kraj
Druh: Pozemky
Typ: Predaj
Typ pozemku: Pozemok pre rodinné domy

Radi Vám poradíme