Používame cookies

Súbory cookie a ďalšie technológie sledovania používame na zlepšenie vášho zážitku z prehliadania našich webových stránok, na to, aby sme vám zobrazovali prispôsobený obsah a cielené reklamy, na analýzu návštevnosti našich webových stránok a na pochopenie toho, odkiaľ naši návštevníci prichádzajú. Viac info

REZERVOVANÉ - 2 izbový byt Krupina, ul. Fr.Kráľa

Popis nehnuteľnosti

Zdieľať na Facebooku

Vo výhradnom zastúpení ponúkame na predaj 2 izbový byt v pôvodnom stave o celkovej výmere 60,55m2. podlahová plocha bytu je 55,32m2. 

Byt je vhodný pre tých, ktorí ocenenia tichú lokalitu a blízkosť základnej aj materskej školy, dobré možnosti parkovania priamo pred bytovým domom a rovnako možnosť si zaujímavo upraviť dispozičné riešenie bytu pre svoje potreby. Výhodou v tejto dobe je aj vlastné plynové kúrenie a ohrev vody.  Za bytovým domom je trávnatá plocha, ktorú by bolo možné v budúcnosti odkúpiť a využívať tento priestor ako predzáhradku k bytu aj s prípadným vytvorením druhého vchodu. 

Na tehlovom bytovom dome prebehla rekonštrukcia – bola vymenená strecha a boli upravené vnútorné spoločné priestory a vchodové dvere.

Ponúkaný byt je v pôvodnom stave, určený na celkovú rekonštrukciu. 

ZÁKLADNÉ ÚDAJE: 
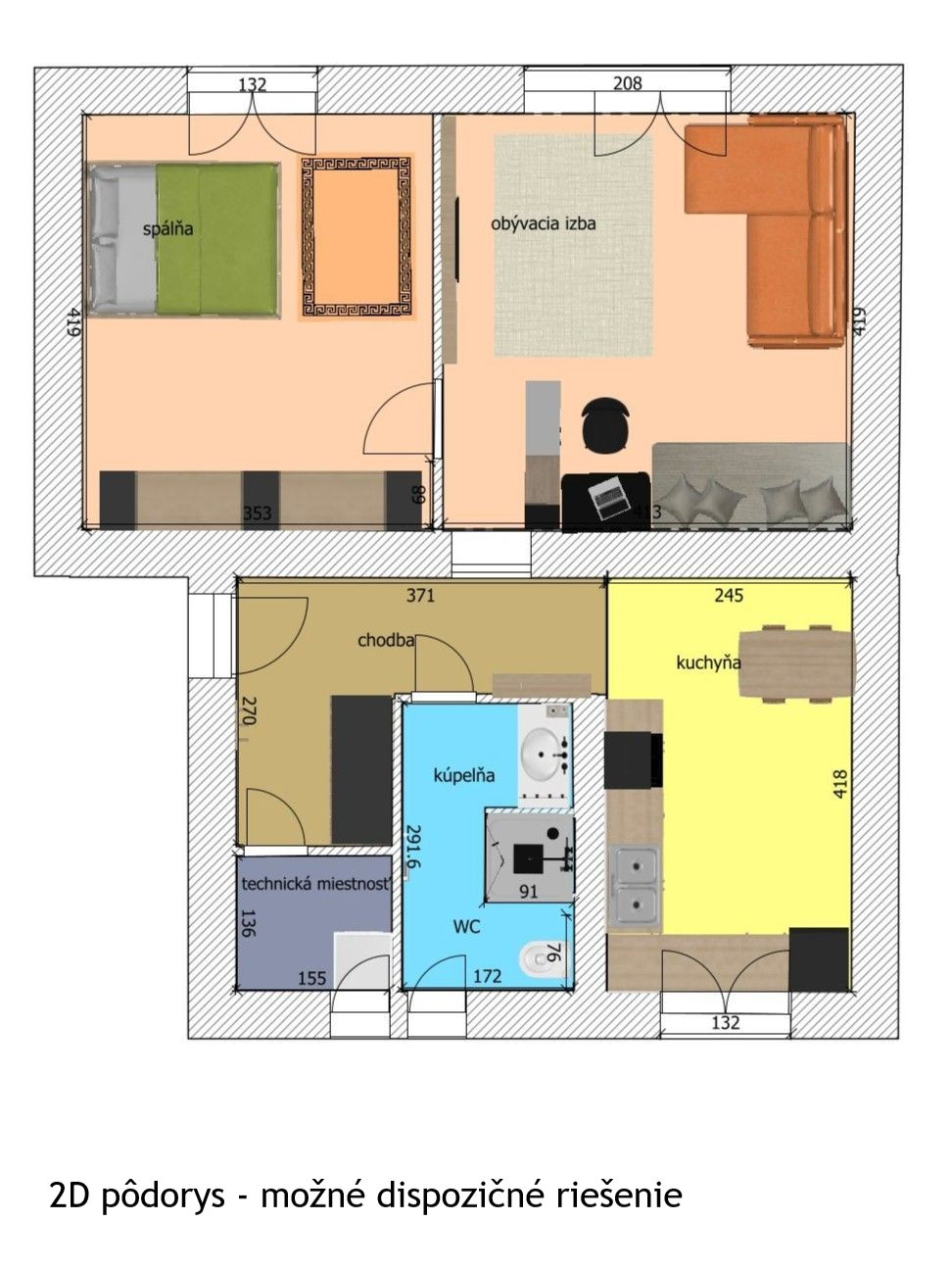
Dispozícia: 2 izbový byt, 1./2 podlažie 
Úžitková plocha: byt 55,32 m2,  pivnice 5,23 m2 
Orientácia bytu: východ (obývačka, spálňa) 
             západ (kuchyňa, kúpelňa) 

POPIS BYTU: vstupná chodba, 2 x izba, kuchyňa, kúpeľňa, WC, špajza, pivnica. 

ENERGIE a POPLATKY: 
Správcom je Mestský bytový podnik Krupina. Mesačné náklady pre 2 osoby: 
* bytové družstvo – fond opráv: 100€ 
* elektrina + plyn 100 eur

CENA a PLATBA: 
- cena 80.500,- Eur 
- byt je voľný, bez akýchkoľvek tiarch 
- platba v hotovosti alebo prostredníctvom hypotekárneho úveru (pomôžeme Vám s jeho vybavením) 
- v prípade viacerých záujemcov o kúpu nehnuteľnosti bude rozhodovať vyššia ponuka ceny

CELKOVÝ DOJEM MAKLÉRA: 
Byt ponúka výborné možnosti na vylepšenie dispozičného priestoru a prípadnú zmenu na 2,5 izbový byt. Veľkou výhodou sa v aktuálnom čase môže stať aj nezávislé vlastné kúrenie a ohrev vody, prípadne odkúpenie a vybudovanie predzáhradky. Dostupné sú aj parkovacie miesta a menší obchod hneď na konci ulice.

Ak ste našli v tejto ponuke Vaše budúce bývanie, kontaktujte ma pre viac informácií a dohodnutie obhliadky.
Zuzana Pčolárová – 0918 317560, Winners Reality Slovakia s.r.o.


Táto inzercia nie je verejnou ponukou na uzavretie zmluvy. Vlastník si vyhradzuje právo voľby o tom, komu a za akých dojednaných podmienok prevedie svoje vlastnícke právo. Pri tejto ponuke je možné licitovať kúpnu cenu podľa všeobecných podmienok licitácie v sieti Winners reality uverejnených na: www.winnersreality.sk/licitacia.

Vlastnosti

Status:
rezervované
Vlastníctvo:
osobné
Úžitková plocha:
60.55 m2
Stav:
pôvodný stav
Počet izieb:
2
Pivnica:
áno
Špajza:
áno
Počet poschodí od prízemia vyššie:
2
Poschodie:
1
Pivnica plocha:
5.23 m2
Počet pivníc:
1
Vykurovanie - centrálne:
áno

Hypotekárna kalkulačka

Rezervované
Ulica: F. Kráľa
Obec: Krupina
Okres: Krupina
Kraj: Banskobystrický kraj
Druh: Byty
Typ: Predaj
Typ bytu: 2-izbový byt

Radi Vám poradíme