Používame cookies

Súbory cookie a ďalšie technológie sledovania používame na zlepšenie vášho zážitku z prehliadania našich webových stránok, na to, aby sme vám zobrazovali prispôsobený obsah a cielené reklamy, na analýzu návštevnosti našich webových stránok a na pochopenie toho, odkiaľ naši návštevníci prichádzajú. Viac info

Dvojgeneračný RD na predaj ● 5 izieb ● okrajová časť obce Veľká Ida

Popis nehnuteľnosti

Zdieľať na Facebooku

EXKLUZÍVNE  Vám ponúkame na predaj 5 izbový rodinný dom v tichej okrajovej časti obce Veľká ida.
Rodinný dom vhodný na dvojgeneračné bývanie skrz 2 samostatných vstupov.
Vhodné na investíciu na prenájom pre Volvo spoločnosť.

ZÁKLADNÉ ÚDAJE:
● Lokalita: Veľká Ida 
● Predmet: rodinný dom
● Počet izieb: 5
● Zastavaná plocha podlažia: 111 m2
● Veľkosť pozemku: 1789 m2 
● Stav: pôvodný stav
● Inžinierske siete: elektrina,  plyn, miestny vodovod, žumpa
● Strecha: plechová

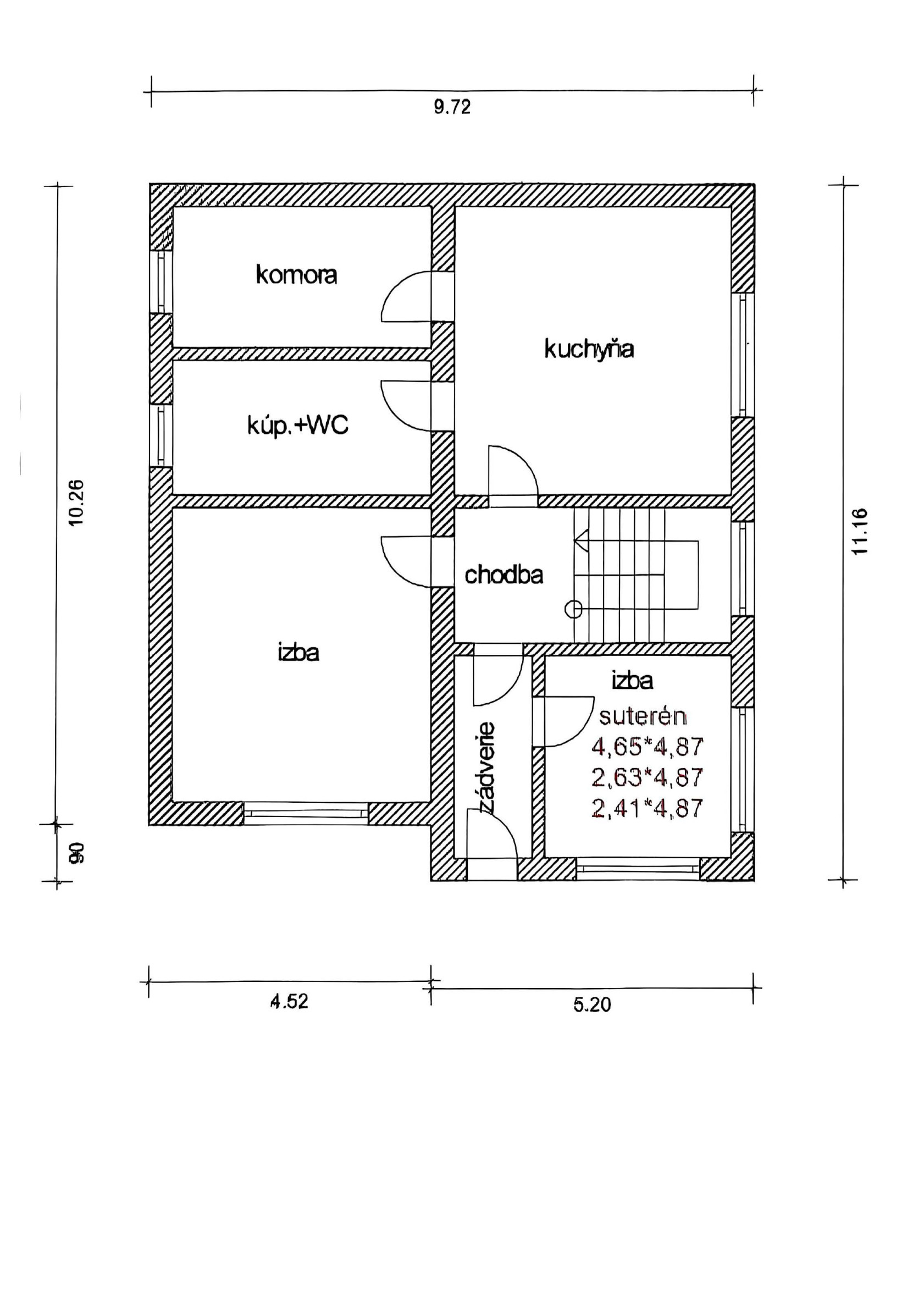
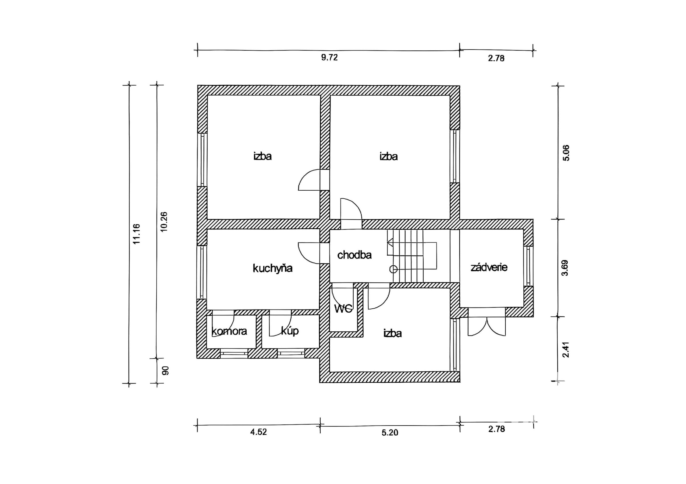
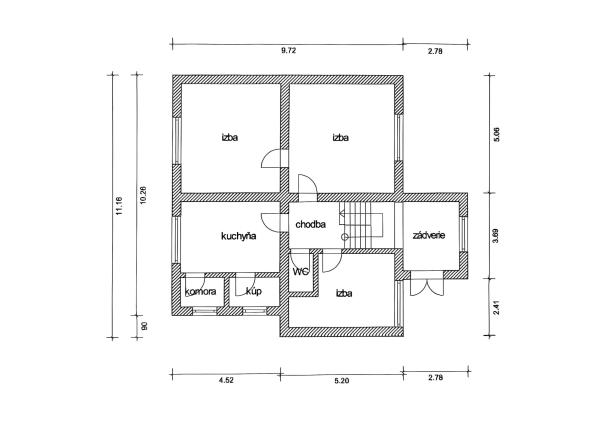
DISPOZÍCIA DOMU:
● 1. NP: zádverie, 2 izby, kuchyňa, kúpeľňa s toaletou, komora, chodba
● 2. NP: zádverie, 3 izby, kuchyňa, kúpeľňa, komora
● pivničné priestory

POPIS DOMU:

●  útulný rodinný dom na rovinatom pozemku plnom zelenej plochy okolo
● rodinný dom s 2 samostatnými vstupmi 
● dispozične vhodný na dvojgeneračné bývanie
● zachovalý pôvodný stav 
● vhodný na rekonštrukciu podľa vlastných predstáv
● predná časť pozemku poskytuje priestor na pestovanie, sadenie, relax 
● dom sa nachádza v tichej, okrajovej časti obce
● vhodný na rekonštrukciu na investíciu napríklad na prenájom pre spoločnosť Volvo
● pri prenájme je veľkým benefitom predná časť pozemku vhodná na parkovanie áut
● na pozemku sa nachádza garáž, hospodárska budova
● pozemok je čiastočne oplotený

LOKALITA A OKOLIE:
● obec je vzdialená 15 km od mesta Košice
● rodinný dom sa nachádza bližšie k obci Perín Chým
● v obci sa nachádza materská škola, základná škola, kaštieľ, rybník, potraviny, pizzéria, vlakové spojenie, autobusové spojenie

CENA A PLATBA:
● cena 189.999 eur
● nehnuteľnosť je možné financovať formou hypotekárneho úveru s ktorým Vám naši hypotekárny špecialisti radi pomôžu
● cena zahŕňa poplatky súvisiace s prevodom nehnuteľnosti, zápisom do katastra nehnuteľnosti, prepisom energií


Táto inzercia nie je verejnou ponukou na uzavretie zmluvy. Vlastník si vyhradzuje právo voľby o tom, komu a za akých dojednaných podmienok prevedie svoje vlastnícke právo. Pri tejto ponuke je možné licitovať kúpnu cenu podľa všeobecných podmienok licitácie v sieti Winners reality uverejnených na: www.winnersreality.sk/licitacia.

Vlastnosti

Status:
aktívne
Vlastníctvo:
osobné
Plocha pozemku:
1789 m2
Úžitková plocha:
111 m2
Stav:
pôvodný stav
Počet izieb:
5
Garáž:
áno
Pivnica:
áno
Počet garáží:
1
Počet pivníc:
1
Inžinierske siete:
áno
Voda:
áno
Elektrika:
áno
Plyn:
áno
Kanalizácia:
áno
Voda - na pozemku:
áno
Elektrika - na pozemku:
áno
Plyn - na pozemku:
áno
Kanalizácia - na pozemku - žumpa:
áno
Vykurovanie - centrálne:
áno

Hypotekárna kalkulačka

189 999 €
Ulica: Veľká Ida
Obec: Veľká Ida
Okres: Košice - okolie
Kraj: Košický kraj
Druh: Domy
Typ: Predaj
Typ domu: Rodinný dom

Radi Vám poradíme